榆林市第三医院影像科机房建设项目——安健医特承建!
时间: 2022-06-29 浏览次数:174

榆林市第三医院
榆林市第三医院是市委、市政府批准成立的一所综合性、非营利性公立医院。医院位于东沙城区金阳小区旁边,环境优美、交通便利、设备先进、功能齐全、技术力量雄厚、服务热情周到,是充分体现“以人为本”的综合医疗服务机构。
医院现开放床位302张,设置有综合内科、综合外科、骨科、妇产科、儿科、手术麻醉科、急诊科、康复理疗科、中医科、皮肤科、眼科、口腔科、耳鼻喉科、感染科等14个临床科室;影像科、检验输血科、药械科、功能科(B超室)、病理科、心电图室、脑电图室、消毒供应室、内镜室、门诊部等10个医技科室。现有干部职工280人,其中专业技术人员243人,特聘专家13人,副高以上26人,中级35人,本科78人;行政及后勤管理人员37人。
拥有全进口美国GE16排螺旋CT机、美国GE DR、美国GE数字胃肠机、腹腔镜、富士激光相机、西门子全自动生化分析仪、血液分析仪、飞利浦高端彩色B超机、德国进口高端呼吸机、麻醉机等大型医疗设备。
医院始终坚持贯彻执行党的卫生方针、政策,坚持“看病明白、检查准确、合理用药、花钱清楚、一切为了患者”的服务理念,着力打造特色服务品牌,不断提升诊疗技术水平。我们以精湛的技术、创新的理念、全新的面貌,竭诚为患者提供安全、高效、便捷、 严谨的医疗服务,今天的榆林三院将以新起点、高标准、跨越式的发展创造辉煌的业绩,为人类健康事业的发展而努力奋斗!
摘自《医院官网》

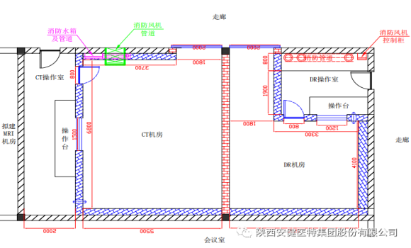
《图为机房平面布局图》
我公司将严格遵守国家工程建设规范、技术规范,国家规定标准《GBZ 130—2020 放射诊断放射防护要求》对本项目进行设计及施工。我公司拥有完备的管理制度及施工管理运作程序,投入本工程的材料将使用一流的材质、加上一流的技术和不懈的努力,我们有坚定的决心来承担该项目,有充分的信心来出色地完成本项目施工任务。

《图为施工现场,完工效果,敬请期待~》
我公司秉承“质量第一,客户至上”的原则,有着专业的施工项目小组及完善的售后服务体系,根据医院提出的具体要求进行设计施工,打造一个客户安心,患者舒心的优质环境。安健医特为致力于成为中国一流的医用工程建设服务企业而不断努力!

往期项目回顾
01 企业介绍
陕西安健医特集团股份有限公司,位于西安市灞桥区东方国际设计师产业园,主要为客户创建BT、PPP、BOT、BOO、EPC等多种医院整体建设模式;专业从事医院洁净手术部、ICU、CCU病房、血液病房、隔离病房、中心供应室、配液室、实验室等净化工程;医院信息化建设及智能化工程、消防工程、特种结构补强等工程的设计与施工;DSA/CT/DR/数字胃肠/骨密度/C型臂/SPECT/MR等机房射线防护及屏蔽装饰工程;医疗、工业等方面射线防护工程的设计与施工;核医学、同位素射线性污水处理工程;医用集中供氧系统及智能语音呼叫系统、医用一体化污水处理系统等医疗专项工程的设计及施工;医疗设备的销售、维保等。

陕西安健医特集团股份有限公司始终坚持“以科技为先导”,不断致力于新产品、新技术、新工艺的引进与开发,以建造符合《规范》与《标准》的现代化医院建设为己任。公司拥有完整的测试仪器和专业检测机构合作,为确保每一项工程,每一项技术指标达到要求提供了保障。我们视每一项工程、每一件产品都是“安健医特的形象”。公司将以诚实守信、求真务实、服务至上、开拓创新的精神,创建医院优质工程,与社会各界真诚合作,共创辉煌。
02 资质等级
建筑工程施工总承包三级
机电工程施工总承包三级
建筑装饰装修专业承包二级
消防设施工程专业承包二级
电子与智能化工程专业承包二级
机电安装工程专业承包三级
钢结构工程专业承包三级
环保工程专业承包三级
特种工程专业承包(结构补强)
三类医疗器械经营许可证
二类医疗器械备案
辐射防护材料检测报告
各体系认证!

安健医特.中国
合作咨询:029-89531648
招聘热线:029-89531648
医院整体建设咨询电话:029-83457376
地址:陕西省西安市灞桥区东方国际设计师产业园缤纷新时代1幢10913室

