【行业洞察】医院建筑电气设计的相关要点
时间: 2023-10-31 浏览次数:201
在所有的建筑中,医院的建筑结具有特殊性,其线路的设计不仅要保证供电的可靠性,还需要综合考虑用电的安全性。只有这样,才能保证身处医院中的病人和医生得到安全保障。因此,在对医院建筑的电气设计时,相关设计人员必须提前了解医院建筑的具体特点,根据实际情况制定相应的医院电气设计类型,并保证所有的电源连接具有较高的安全系数。基于此,本文讨论了在医院建筑中,针对电气设计的复杂性,进行深入的研究,以提高供电的可靠性和安全性。

医院的电力设计是整个医院建筑设计的重要组成部分,并且,医院电气的安全可靠直接决定了医患人员的人身安全。因此,在中国经济发展的促进下,改变对医院电气设计的方法,以小楼房式的电气设计取代了以往规模小、设计老旧、功能不全、空间简单的医院电气设计,使得新的医院电气设计具有酒店式的外观、新型家庭式布置,迎合人们的要求。同时,门诊和急诊大楼以中庭的形式集中了登记、付款、检查和药品分发的多个不同柜台,使医院拥挤的中央部分变得宽敞明亮,使病人及其家属在等待时不会感到压抑,提升医院电气设备的设计质量。
1.负荷分级设计要点
医院的医疗室分类如下:“0”级医疗室,与医疗和电气设备接触的部分不使用;“1”级医疗室,与医疗和电气设备接触的部分需要与病人的身体接触(除“2”医疗室,电气设备的部分与病人的身体接触,并保证电源发生故障时能够及时关闭。综合以上三种类型可以看出,医院的负荷分级,主要是根据医疗设备的功能,以及该设备对病人生命安全的影响来进行等级划分的。因此,负荷分级不仅要考虑到医院建筑电气设备的设计标准,还要考虑到建筑的类别,保证其符合相应的负荷等级。
2.供电系统设计要点
医院的建设表明,新医院使用集中空调、医疗和技术设备,以及高标准的照明设备等。其用电能力也大大增加,对供电的可靠性、安全性和保障性的要求也越来越高。要确定医院的供电系统,首先要确定医院在建设期间的电力负荷是多少。根据国家标准,医院建筑可以定义为多层一级建筑,其中包括急诊科、手术室、急救室、儿科、产科、血库和其他一级负荷。即使医院不是一级建筑,但有这些房间和其他医疗活动的一级负荷,使得整个建筑的电力负荷也被定义为一级负荷。
3.低压配电系统设计要点
医院的低压配电网络通常使用放射式供电与树干式供电配电的组合。关键设备由放射式供电站供电,而基本负荷则在双电源的末端自动切换。除了双重供应外,还必须向关键负荷设备提供柴油发电机。由于医院业务的特殊性,电气设备的使用也有其特殊性,存在着许多大型的符合,但由于地点分散不同以及功率不同,给电力规划带来许多困难。

(一)手术室
手术室是医院的中心部门,由于其重要性,必须特别注意电力负荷为重要等级。除了使用放射式供电与树干式供电配电之外,还必须有一台柴油发电机作为备用能源。手术室的电力必须由医院的中央配电系统的单独线路提供,并连接到手术室柜子的后面。柴油发电机必须由一条单独的线路提供给手术室机柜,以确保不间断的电力连接。如果EPS被用作紧急电源,它可以被安装在手术室内。操作电源必须与相邻房间的电源分开,每个科室的电源必须单独安装,每个分支必须有接地装置进行保护。洁净手术室应安装一个单独的配电盘,该面板应位于洁净室外。洁净室的总电负荷应根据设计要求计算,但不得低于8千伏安。
(二)急诊室
急诊室应急电源必须足以满足关键负载的需要。并且紧急手术室和化验室应配备足够的电气设备,以满足工作的程序要求。
(三)检验科、理疗科
检验科、理疗科医疗设备对电源电压的稳定性有很高的要求,因此来自电源插座的电流必须由电压调节器或自带电压调节器的设备来调节。
(四)放射科
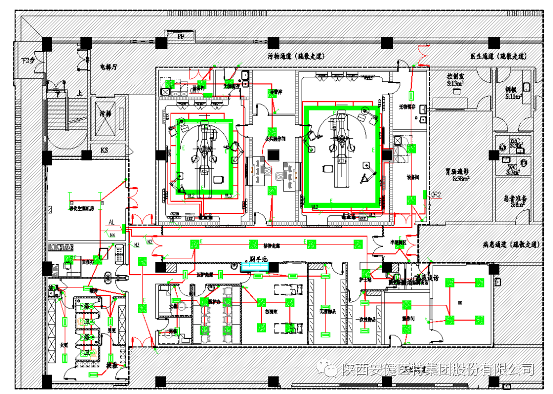
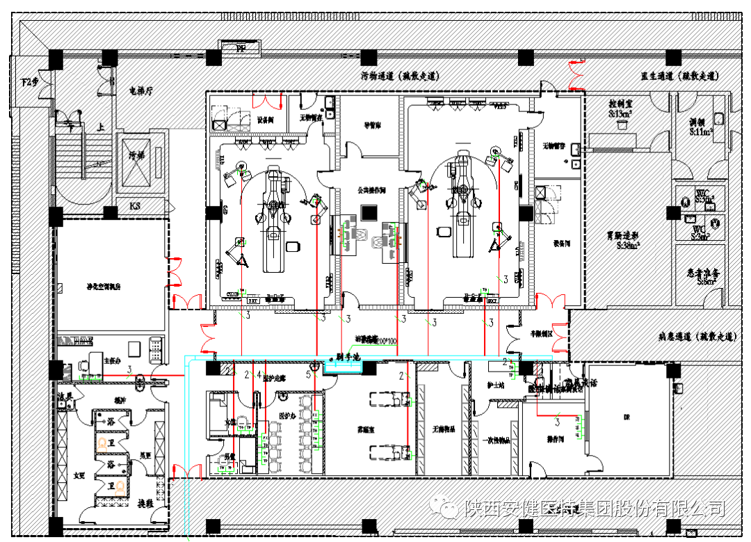
ECT和CT设备分别的电源容量约为150千伏安和35-50千伏安,相应的调节器(用于电压调节)安装在各自的机房,机柜将有自己的接线盒。内部照明、门控制指示灯、门位置指示灯等应该有电路联系功能。X光设备每台耗电约50千伏安,一般医院5-6台耗电可达250千伏安,但使用需求比例很低,只有0.2左右,每个电箱有一台门机锁以及控制指示灯。
4.照明设计要点

医院照明是医院现代外观的一个重要组成部分。医院照明的设计是为了满足病人和医务人员的需要。提供明亮宜人的环境确保医院工作人员能够高效地开展工作,病人能够平静地等待治疗。然而,奢华和过度标准化的照明设计超过了运营成本,大大增加了医院的建设和维护成本,不利于节约能源。因此,有必要考虑不同区域的照明功能,整合其他因素,使用适当的照明设备以节约能源。
5.电气安全及电力保护系统设计要点
医院应在治疗室、手术室、心血管影像科等处提供额外的等电位联结。使心血管科、重症监护室和其他一级和二级医疗部门可以单独安装等电位联结。在2级医疗室,SEB和每个连接点之间的总阻抗不应超过0.2。为了便于布线和检测,2级医疗场所的SEB应放置在一个单独的隔间内,并设置等电位联结。等电位联结连接包括:PE护套、金属设备罩、金属护套、金属角架、金属床架、建筑外的导电部件、建筑内屏蔽设备等。应该注意的是,IT系统和TNS系统必须使用相同的保护导体,在辅助电位连接的情况下,保护导体的两根导体必须连接到同一个SEB屏蔽系统,以尽可能避免该区域的电位差。
6.节能设计要点
医院是运营要求最高的大型公共建筑之一,其电力能源消耗约占医院能源消耗的64%。因此,医院的管理需要着重考虑电力管理,根据实际情况解决能赢消耗严重的问题,以提高电气设备的能源使用效率。当电力通过电缆、开关、变压器和其他设备传输时,也会出现能量损失。也可能会出现发热而停电的明显问题,产生的热量增加了电导体的温度,加速了绝缘材料的老化,缩短了其寿命,这也是医院中电力电缆故障的原因。此外,分配线路的数量也会导致大量的能源损失,一般来说,医院的配电线路损失约为6%,严重时可达到10%或更高。因此,参考国家节能政策进行线路规划,是节约能源重要一步。在设计医院电气系统时,可以通过选择变压器、高低压开关、功率补偿、高节能的继电器、绿色照明等来节约能源。
7.弱电系统设计要点
当下,医院正变得越来越现代化和先进,但考虑到医院目前的运营需求,从长远来看,在新建设的医院投入使用时,必须考虑到电力系统的不足之处。除了计算机、电话系统和管理系统外,还有综合电网系统、安全监控系统、手术室系统、远程诊断系统、有线电视系统、火灾报警系统和充电等系统。还要考虑控制电源、空调、供水和排污系统以及其他重要的医院设备,保证内个区域配备一个独立的电力线路,并根据经济发展的需要,逐步整合成一个综合的有线系统。

现代医院电气系统的设计是一个复杂的项目,必须考虑到许多方面,其中一些直接关系到病人及其家属的。例如,医院的公共区域(包括病房和走廊)应配备公共电话,病房和浴室应配备紧急呼叫按钮,等候区应配备大屏幕或有线电视。并且保证电气装置的接地线状况正常,医疗技术设备的主接地线应选择有足够的截面与建筑接地线相连,不应遗漏。手术室、重症监护室的电气连接和局部电气连接不应该被忽视,以确保有效防止致命的电气事故。
以上摘自 | 医合园
若有侵权,联系删除

01企业介绍
陕西安健医特集团股份有限公司,位于西安市灞桥区东方国际设计师产业园,主要为客户创建BT、PPP、BOT、BOO、EPC等多种医院整体建设模式;专业从事医院洁净手术部、ICU、CCU病房、血液病房、隔离病房、中心供应室、配液室、实验室等净化工程;医院信息化建设及智能化工程、消防工程、特种结构补强等工程的设计与施工;DSA/CT/DR/数字胃肠/骨密度/C型臂/SPECT/MR等机房射线防护及屏蔽装饰工程;医疗、工业等方面射线防护工程的设计与施工;核医学、同位素射线性污水处理工程;医用集中供氧系统及智能语音呼叫系统、医用一体化污水处理系统等医疗专项工程的设计及施工;医疗设备的销售、维保等。

陕西安健医特集团股份有限公司始终坚持“以科技为先导”,不断致力于新产品、新技术、新工艺的引进与开发,以建造符合《规范》与《标准》的现代化医院建设为己任。公司拥有完整的测试仪器和专业检测机构合作,为确保每一项工程,每一项技术指标达到要求提供了保障。我们视每一项工程、每一件产品都是“安健医特的形象”。公司将以诚实守信、求真务实、服务至上、开拓创新的精神,创建医院优质工程,与社会各界真诚合作,共创辉煌。

02资质等级
建筑工程施工总承包三级
机电工程施工总承包三级
建筑装饰装修专业承包二级
消防设施工程专业承包二级
电子与智能化工程专业承包二级
机电安装工程专业承包三级
钢结构工程专业承包三级
环保工程专业承包三级
特种工程专业承包(结构补强)
三类医疗器械经营许可证
二类医疗器械备案
辐射防护材料检测报告
各体系认证!

安健医特.中国
http://www.sxajyt.cn
合作咨询:029-89531648
招聘热线:029-89531648
医院整体建设咨询电话:400-8885275
地址:陕西省西安市灞桥区东方国际设计师产业园缤纷新时代1幢10913室

