【行业洞察】质子治疗中心建设要点
时间: 2025-01-15 浏览次数:185

质子治疗是利用医用质子加速器产生的高能质子束,通过精确控制质子束的能量、扫描位置、深度和强度,使质子束在人体内部形成尖锐的峰状剂量分布,即布拉格峰。这个布拉格峰可以准确覆盖整个肿瘤靶区,并将绝大部分能量释放到癌变区域,从而精准杀伤肿瘤,同时最大程度保护周边的健康组织。质子治疗中心作为现代医疗领域的高端设施,以其精准度高、对正常组织损伤小等优势,在肿瘤放射治疗领域发挥着越来越重要的作用。
一、选址与规划
1.交通便利性:质子治疗中心应选址于交通便利的区域,方便患者和医护人员到达。同时,周边应有完善的市政设施支持。
2.环境要求:选址应远离易燃、易爆物品的生产和贮存区、高压线路及其设施,避免噪声源、振动源和电磁场等干扰。此外,应具备良好的通风条件,确保空气清新。
3.人性化设计:建筑设计应体现人性化理念,为患者和医护人员提供舒适的治疗和工作环境。
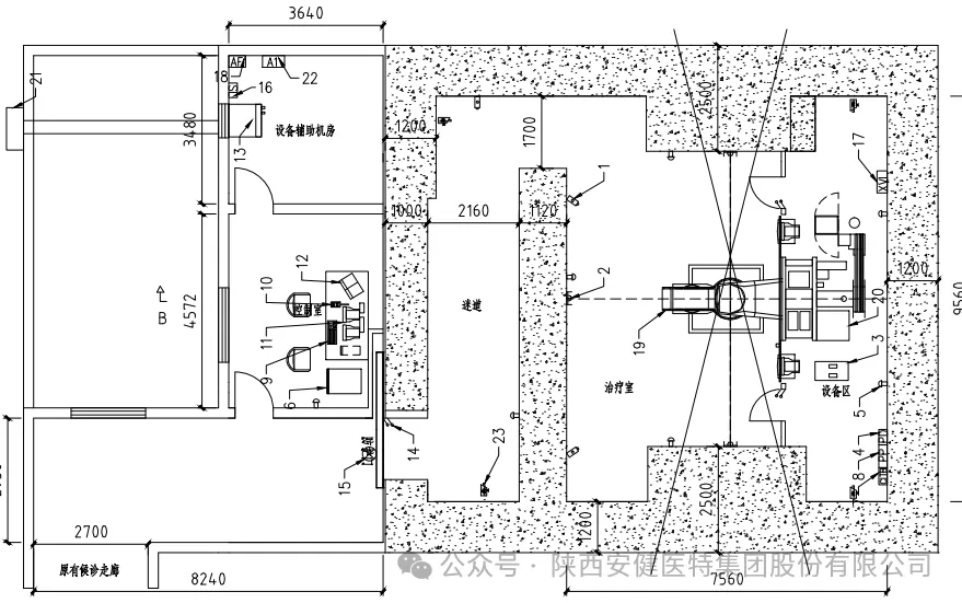
4.流线设计:流线设计应合理、清晰,确保患者、医护人员、设备运输等流线的顺畅,避免交叉感染和相互干扰。

1.质子治疗区:这是核心区域,包含质子治疗设备如回旋加速器、治疗室等。该区域需满足设备对空间、承重、防辐射等特殊要求,并预留足够的空间用于设备的安装、调试与维护。
2.患者接待与候诊区:包括登记处、候诊区、咨询室等,为患者提供舒适的等待环境和便捷的咨询服务。
3.准备区:用于患者在治疗前进行更衣、麻醉诱导等准备工作。
4.控制室与操作区:医护人员在此监控治疗过程,操作治疗设备。
5.设备维护与储存区:用于质子治疗设备的日常维护、检修及零部件的储存。
6.行政办公与科研教学区:提供医护人员办公、会议及科研教学空间。

三、辐射防护措施
1.治疗区域应设置有效的辐射防护屏障,如防辐射墙、屏蔽门等,确保治疗过程中的辐射不会泄漏到外部区域。这通常包括使用大体积的混凝土(硫酸钡)、铅板、硫酸钡板、钢筋等建筑防辐射材料来构建治疗机房的墙体和顶板,以确保辐射被安全地屏蔽在机房内部。
2.质子治疗中心会严格遵守国际辐射防护委员会(ICRP)和美国国家辐射防护委员会(NCRP)等权威机构制定的辐射安全标准和建议。这些标准包括对个人剂量的限制、暴露的合理性、优化暴露(ALARA原则)以及遵守剂量限制等。通过科学的管理和严格的操作规范,确保在治疗过程中辐射剂量得到有效控制,不会对人员和环境造成危害。
3.配备专业的辐射监测设备,实时监测治疗区域的辐射水平,确保辐射安全。
4.质子治疗中心还会对医护人员和患者进行专业的辐射安全培训和教育。通过培训,使医护人员了解辐射防护的基本知识和操作技能,确保他们在工作过程中能够正确地使用防护设备和遵守操作规范。

1.节能设计:采用节能设备和材料,如LED照明、节能空调等,降低能耗和运营成本。同时,充分利用自然采光和通风,减少人工照明和空调的使用。
2.绿化设计:在建筑周边或内部设置绿化区域,如屋顶花园、室内绿植等,以改善环境质量和提升患者体验。绿化设计应注重植物的选择和布局,确保美观和实用。
3.垃圾分类与处理:设置垃圾分类收集点和处理设施,确保医疗废物的合理处理和回收利用。同时,加强对医护人员的环保教育,提高他们的环保意识。
-- 以上摘自百度网,如有侵权联系删除
企业介绍
陕西安健医特集团股份有限公司,位于西安市灞桥区东方国际设计师产业园,主要为客户创建BT、PPP、BOT、BOO、EPC等多种医院整体建设模式;专业从事医院洁净手术部、ICU、CCU病房、血液病房、隔离病房、中心供应室、配液室、实验室等净化工程;医院信息化建设及智能化工程、消防工程、特种结构补强等工程的设计与施工;DSA/CT/DR/数字胃肠/骨密度/C型臂/SPECT/MR等机房射线防护及屏蔽装饰工程;医疗、工业等方面射线防护工程的设计与施工;核医学、同位素射线性污水处理工程;医用集中供氧系统及智能语音呼叫系统、医用一体化污水处理系统等医疗专项工程的设计及施工;医疗设备的销售、维保等。
陕西安健医特集团股份有限公司始终坚持“以科技为先导”,不断致力于新产品、新技术、新工艺的引进与开发,以建造符合《规范》与《标准》的现代化医院建设为己任。公司拥有完整的测试仪器和专业检测机构合作,为确保每一项工程,每一项技术指标达到要求提供了保障。我们视每一项工程、每一件产品都是“安健医特的形象”。公司将以诚实守信、求真务实、服务至上、开拓创新的精神,创建医院优质工程,与社会各界真诚合作,共创辉煌。
资质等级
建筑工程施工总承包二级
机电工程施工总承包二级
建筑装饰装修专业承包二级
消防设施工程专业承包二级
电子与智能化工程专业承包二级
机电安装工程专业承包二级
钢结构工程专业承包二级
环保工程专业承包二级
特种工程专业承包(结构补强)
三类医疗器械经营许可证
二类医疗器械备案
辐射防护材料检测报告
各体系认证!
安健医特.中国
http://www.sxajyt.cn
合作咨询:029-89531648
招聘热线:029-89531648
医院整体建设咨询电话:400-8885275
地址:陕西省西安市灞桥区东方国际设计师产业园缤纷新时代1幢10913室

