【行业洞察】病理区为何要设计三区两通道
时间: 2025-01-24 浏览次数:258

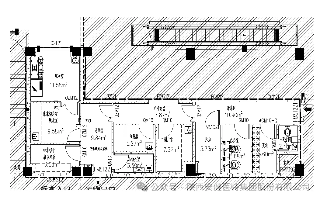
病理区是医院中负责疾病病理诊断的重要区域,主要负责研究和诊断疾病的形态学变化和病理生理过程。病理区通过接收临床科室送来的病变组织标本,进行一系列的处理和诊断,为临床提供明确的病理诊断结果,帮助医生制定合适的治疗方案。病理区的规划与设计对于提高工作效率、确保生物安全及保护医患人员健康至关重要。随着医疗技术的进步和生物安全意识的提升,“三区两通道”的设计理念逐渐成为现代病理区建设的标准配置。
一、三区功能布局
2.半污染区:位于清洁区与污染区之间,作为过渡地带,主要用于样本的初步处理、试剂准备及已使用器械的初步清洗消毒。此区域需严格控制人员流动,采取必要的个人防护措施,减少污染风险。
3.污染区:直接处理病患样本的区域,包括样本接收、切片制作、染色、显微镜观察等。该区域需实行严格的负压管理,配备高效生物安全柜、专用通风系统及废弃物处理设施,确保所有操作在安全环境下进行,防止病原体外泄。

二、两道区域划分
1.人员通道:专为医护人员设计,从清洁区一端进入,经过更衣、洗手、消毒等流程后,方可进入工作区。这一通道确保了医护人员在进入不同区域前达到相应的清洁或防护要求,避免了他们与潜在污染物的直接接触,从而保护了医护人员的健康。

三、具体工作流程
1.标本接收与登记:临床科室送来的病变组织标本,首先在收发标本室进行核对、登记和编号。
2.取材与固定:标本送至取材室,由病理医师进行取材,并按照规范进行固定。
3.脱水与浸蜡:固定后的标本在脱水机内进行脱水处理,然后浸蜡,为包埋做准备。
4.包埋与切片:将浸蜡后的组织进行包埋,制备成蜡块,然后进行切片。
5.染色与诊断:切片经过染色后,由病理医生在显微镜下观察,进行病理诊断。

四、指导意义
2.在疾病诊断领域,尤其是肿瘤疾病的诊断中,病理诊断被视为“金标准”。它能够直接、准确地告诉患者及临床医师身体哪个部位出现了什么样的病理改变,以及病变的严重程度,为临床提供了最可靠的诊断信息。
3.还承担了科研任务,通过深入研究疾病的形态结构、代谢和功能等方面的改变,揭示疾病的病因、发病机制和转归,推动医学理论和技术的发展,提升疾病的预防、诊断和治疗水平。
企业介绍
陕西安健医特集团股份有限公司,位于西安市灞桥区东方国际设计师产业园,主要为客户创建BT、PPP、BOT、BOO、EPC等多种医院整体建设模式;专业从事医院洁净手术部、ICU、CCU病房、血液病房、隔离病房、中心供应室、配液室、实验室等净化工程;医院信息化建设及智能化工程、消防工程、特种结构补强等工程的设计与施工;DSA/CT/DR/数字胃肠/骨密度/C型臂/SPECT/MR等机房射线防护及屏蔽装饰工程;医疗、工业等方面射线防护工程的设计与施工;核医学、同位素射线性污水处理工程;医用集中供氧系统及智能语音呼叫系统、医用一体化污水处理系统等医疗专项工程的设计及施工;医疗设备的销售、维保等。
陕西安健医特集团股份有限公司始终坚持“以科技为先导”,不断致力于新产品、新技术、新工艺的引进与开发,以建造符合《规范》与《标准》的现代化医院建设为己任。公司拥有完整的测试仪器和专业检测机构合作,为确保每一项工程,每一项技术指标达到要求提供了保障。我们视每一项工程、每一件产品都是“安健医特的形象”。公司将以诚实守信、求真务实、服务至上、开拓创新的精神,创建医院优质工程,与社会各界真诚合作,共创辉煌。
资质等级
建筑工程施工总承包二级
机电工程施工总承包二级
建筑装饰装修专业承包二级
消防设施工程专业承包二级
电子与智能化工程专业承包二级
机电安装工程专业承包二级
钢结构工程专业承包二级
环保工程专业承包二级
特种工程专业承包(结构补强)
三类医疗器械经营许可证
二类医疗器械备案
辐射防护材料检测报告
各体系认证!
安健医特.中国
http://www.sxajyt.cn
合作咨询:029-89531648
招聘热线:029-89531648
医院整体建设咨询电话:400-8885275
地址:陕西省西安市灞桥区东方国际设计师产业园缤纷新时代1幢10913室

